Blog

Insights, tips, and trends to help you optimize warehouse storage, automation, and safety—straight from the industry pros.

Latest article

Weighing the Options for Selective Pallet Rack Depth

Weighing the Options for Selective Pallet Rack Depth

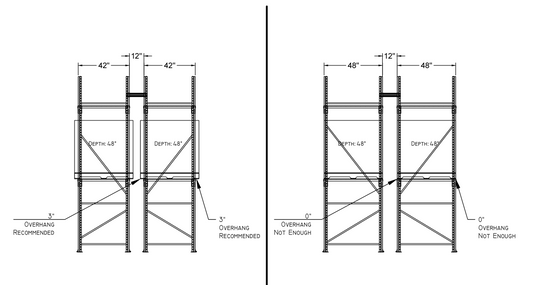
Pros & Cons of Using 42” vs. 48” Deep Uprights with Standard 48”x 40” Pallets Industry experts agree that selective racking is the most common type of pallet racking. Its...

17.05.2024

More Articles

Weighing the Options for Selective Pallet Rack Depth

Weighing the Options for Selective Pallet Rack ...

17.05.24

Pros & Cons of Using 42” vs. 48” Deep Uprights with Standard 48”x 40” Pallets Industry experts agree that selective racking is the most common type of pallet racking. Its...

Weighing the Options for Selective Pallet Rack ...

Pros & Cons of Using 42” vs. 48” Deep Uprights with Standard 48”x 40” Pallets Industry experts agree that selective racking is the most common type of pallet racking. Its...

17.05.24
Elevating Efficiency: Racking Beams and Warehouse Distribution

Elevating Efficiency: Racking Beams and Warehou...

24.01.24

Elevating Efficiency: Racking Beams and Warehouse Distribution Efficient warehousing involves the synergy of robust structural elements like racking beams and strategic warehouse distribution strategies. This article explores how racking beams...

Elevating Efficiency: Racking Beams and Warehou...

Elevating Efficiency: Racking Beams and Warehouse Distribution Efficient warehousing involves the synergy of robust structural elements like racking beams and strategic warehouse distribution strategies. This article explores how racking beams...

24.01.24
Tailored Storage for Success: Warehouse Racking Systems and Food & Beverage Companies

Tailored Storage for Success: Warehouse Racking...

16.01.24

Tailored Storage for Success: Warehouse Racking Systems and Food & Beverage Companies Efficient storage is the backbone of success for any business, especially in the dynamic realm of Food and...

Tailored Storage for Success: Warehouse Racking...

Tailored Storage for Success: Warehouse Racking Systems and Food & Beverage Companies Efficient storage is the backbone of success for any business, especially in the dynamic realm of Food and...

16.01.24
Warehouse Racking Services in Dallas Tx

Warehouse Racking Services in Dallas Tx

17.11.23

Introduction to Warehouse Racking Services in Dallas Warehouse racking services in Dallas play a pivotal role in optimizing storage and logistics operations. Dallas, a thriving hub of commerce and industry,...

Warehouse Racking Services in Dallas Tx

Introduction to Warehouse Racking Services in Dallas Warehouse racking services in Dallas play a pivotal role in optimizing storage and logistics operations. Dallas, a thriving hub of commerce and industry,...

17.11.23
Finding Viable Used Pallet Racks Online

Finding Viable Used Pallet Racks Online

28.08.23

Finding viable used pallet racks online can be a cost-effective solution for expanding your storage capacity without the hefty price tag of new systems. With a plethora of options available,...

Finding Viable Used Pallet Racks Online

Finding viable used pallet racks online can be a cost-effective solution for expanding your storage capacity without the hefty price tag of new systems. With a plethora of options available,...

28.08.23
Enhancing Productivity through Warehouse Racking

Enhancing Productivity through Warehouse Racking

28.08.23

Warehouse racking systems are the backbone of efficient storage and organization within modern warehouses and distribution centers. These systems enable businesses to effectively manage inventory, streamline operations, and optimize space...

Enhancing Productivity through Warehouse Racking

Warehouse racking systems are the backbone of efficient storage and organization within modern warehouses and distribution centers. These systems enable businesses to effectively manage inventory, streamline operations, and optimize space...

28.08.23
Importance of Protecting Racking Uprights

Importance of Protecting Racking Uprights

28.08.23

Racking upright protectors are vital components of warehouse safety systems. Designed to shield vertical racking columns from collisions, these protectors prevent potential damage and ensure the longevity of your storage...

Importance of Protecting Racking Uprights

Racking upright protectors are vital components of warehouse safety systems. Designed to shield vertical racking columns from collisions, these protectors prevent potential damage and ensure the longevity of your storage...

28.08.23
Installation and Maintenance of Racking Beams

Installation and Maintenance of Racking Beams

28.08.23

Racking beams are central components in modern warehousing systems. These horizontal elements provide essential support for pallets and items within racking structures. By facilitating safe storage and easy access, racking...

Installation and Maintenance of Racking Beams

Racking beams are central components in modern warehousing systems. These horizontal elements provide essential support for pallets and items within racking structures. By facilitating safe storage and easy access, racking...

28.08.23
Industrial Storage Racks and Their Factors

Industrial Storage Racks and Their Factors

11.08.23

Introduction to Industrial Storage Racks Industrial storage racks are essential elements in the organization and functionality of warehouses, manufacturing facilities, and distribution centers. These robust structures are purpose-built to accommodate...

Industrial Storage Racks and Their Factors

Introduction to Industrial Storage Racks Industrial storage racks are essential elements in the organization and functionality of warehouses, manufacturing facilities, and distribution centers. These robust structures are purpose-built to accommodate...

11.08.23
Factors to Consider When Choosing Pallet Rack Systems

Factors to Consider When Choosing Pallet Rack S...

11.08.23

Introduction to Pallet Rack Systems Pallet rack systems are integral components of modern warehouses and storage facilities, designed to optimize space utilization and facilitate efficient storage and retrieval of goods....

Factors to Consider When Choosing Pallet Rack S...

Introduction to Pallet Rack Systems Pallet rack systems are integral components of modern warehouses and storage facilities, designed to optimize space utilization and facilitate efficient storage and retrieval of goods....

11.08.23
Installation and Maintenance of Upright Protectors

Installation and Maintenance of Upright Protectors

11.08.23

Introduction to Upright Protectors Warehouse racking, also known as pallet racking or storage shelving, is a versatile and efficient system designed to optimize the utilization of space in industrial and...

Installation and Maintenance of Upright Protectors

Introduction to Upright Protectors Warehouse racking, also known as pallet racking or storage shelving, is a versatile and efficient system designed to optimize the utilization of space in industrial and...

11.08.23
Factors for Warehouse Racking

Factors for Warehouse Racking

11.08.23

Introduction to Warehouse Racking Warehouse racking, also known as pallet racking or storage shelving, is a versatile and efficient system designed to optimize the utilization of space in industrial and...

Factors for Warehouse Racking

Introduction to Warehouse Racking Warehouse racking, also known as pallet racking or storage shelving, is a versatile and efficient system designed to optimize the utilization of space in industrial and...

11.08.23