Weighing the Options for Selective Pallet Rack Depth

Weighing the Options for Selective Pallet Rack Depth

Pros & Cons of Using 42” vs. 48” Deep Uprights with Standard 48”x 40” Pallets

Industry experts agree that selective racking is the most common type of pallet racking. Its straightforward design and versatility make it suitable for a wide range of storage applications. The main components of selective pallet racks are columns and struts, which form the upright frames, and shelf beams that connect the uprights to create the pallet rack bay.

While the upright height is primarily determined by warehouse space (ceiling height) and inventory volume (number of levels/bays), the upright frame depth also deserves careful consideration. Did you know there are options for accommodating standard 48” x 40” pallets? We'll guide you through the variables.

Understanding Rack Frame Depth Options

Rack frame depths of 42” or 48” are commonly used for standard-sized pallets. Each depth has its advantages and challenges:

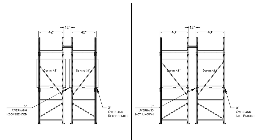
Guidelines for Selective Pallet Rack Frame Depth:

  • 42” Deep Uprights: The common formula to determine upright depth for standard pallets is to subtract 6” from the pallet depth. For example, a standard 48” long x 40” wide GMA-style pallet would require 42” deep uprights (48” - 6” = 42”).

This depth allows for a 3” overhang at the front and back of the rack, which must be considered when determining aisle depth (front overhang) and adhering to fire safety requirements (rear overhang).

Note that a minimum of 6” of open space is required behind the rack row, known as flue space, a standard fire safety regulation. For back-to-back configurations, this means a minimum flue space of 12” (2 x 6”). The challenge with 42” deep racks is ensuring that the pallet overhang does not exceed the allotted space, which could crowd the flue space.

Height-to-Depth Considerations: Pallet rack frames that are 42” deep and taller than 20’ exceed the recommended 6:1 height-to-depth ratio and may require additional engineering, such as special anchors, base plates, or overhead pallet rack ties.

Design Considerations of 42” Upright Depth:

    • Reduced steel usage
    • Lower overall cost
    • Harder to manage open flue space
    • May require additional engineering for heights exceeding 20’
    • Easier for forklifts to place pallets securely on the front and rear beams
  • 48” Deep Uprights: Designing the upright to the full pallet depth of 48” requires more steel and increases system cost but offers several advantages.

Design Considerations of 48” Upright Depth:

    • Easier to maintain flue space
    • No pallet overhang, resulting in neater aisles
    • Safer for picking at ground level when used with wire decking
    • More steel, higher upfront cost
    • Easier for forklifts to align pallets with the front beam for secure loading

Using a 48” deep upright with a 48” deep pallet leaves little room for error in forklift loading. The beams must be precisely spaced to support both the front and rear of the pallet. Pallet supports and/or wire mesh deck can be added for extra safety, helping to support the pallet boards temporarily if the operator does not initially align both front and rear beams correctly.

Choosing the Right Upright Depth

Choosing between the two upright depths does not affect the overall system layout. The 6” difference is accounted for in the flue space between two racks in a back-to-back scenario (reducing spacing from 12” to 6”), or not at all in a single-deep system, as the aisle is designed to accommodate the pallet depth either way.

We hope this guide has answered some of your questions regarding selective pallet rack depth design considerations. For more information or system design support, our experienced pallet rack engineers are here to help. Give us a call today, and we’ll get right on it!

 

Ready to Maximize Your Warehouse Efficiency?

Get a fast, no-obligation quote and take the first step toward smarter storage and streamlined operations today.